网站首页
关于万象城在线_万象城(中国)
产品世界
新闻资讯
工程案例
售后服务
全国网点
万象城在线_万象城(中国)
合格证真伪查询
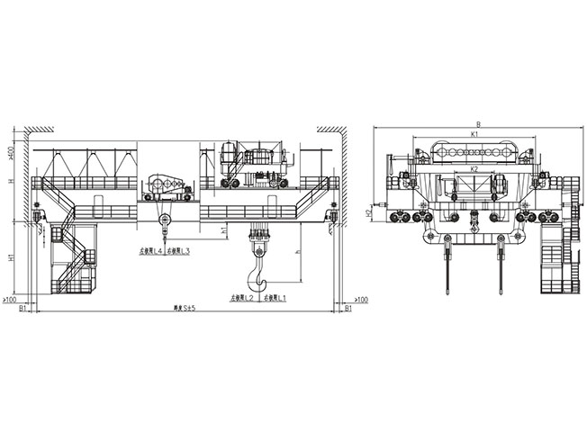
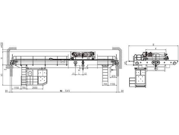
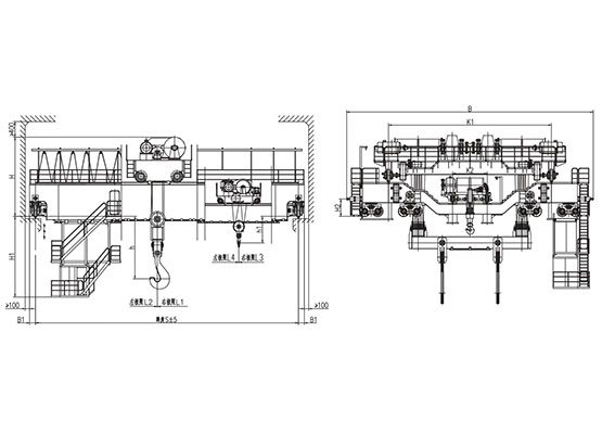
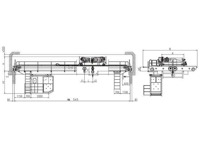
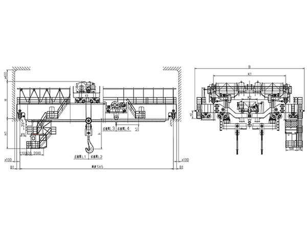
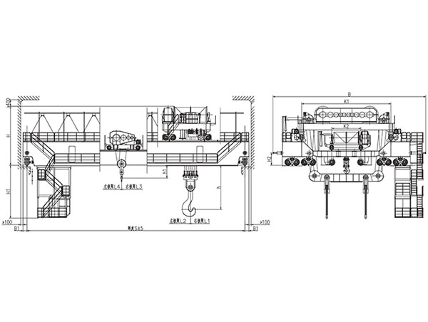
双梁起重机
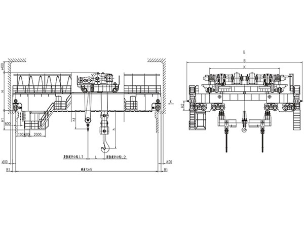
QDY型16、3.2~20、5t冶…
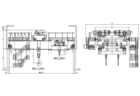
QDY型32、5~50、10t冶金…
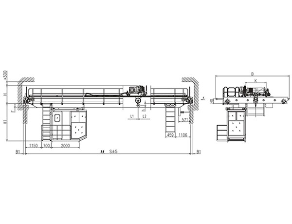
QDY型74、20t冶金起重机…
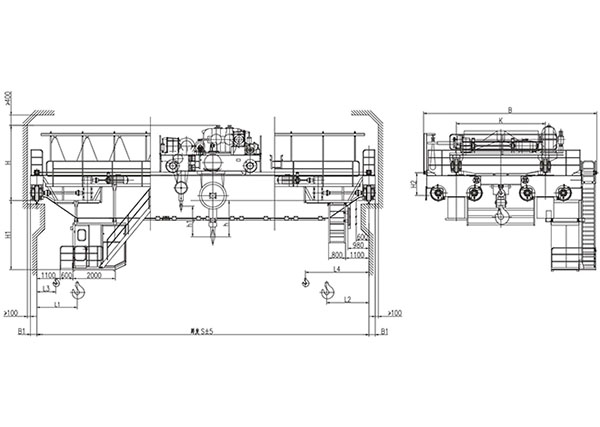
YZ型100、32~125…
YZ型125、32~140、40t铸…
YZ型140、40t铸造起重机…
YZ型160、40t铸造起重机…
YZ型180、50~240、75t铸…
YZ型280、75~320、80t铸…
5~10t欧式吊钩桥式起重…
16~20t欧式吊钩桥式起重…
32~50t欧式吊钩桥式起重…
总共 63 条记录 每页 12 条 共 6 页 当前第 3 页
首页
上一页
1
2
3
4
5
6
下一页
尾页
爱游戏网页版
|
万象城平台
|
开云官方在线入口
|
华体会手机网页版登录入口
|
荣耀官方网站_荣耀(中国)股份有限公司
|
U8(中国)
|
荣耀在线(中国)唯一官方网站
|
爱体育线上官网(集团)官方网站
|
荣耀体育(中国)RONGYAO·官方网页版
|